






$499,900
78 Outback Drive, Brandon
MLS® Number: 202604789
Description
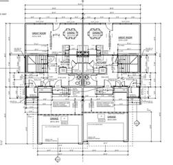
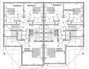
This two-story home, to be built by Concept Homes, a premier builder in Brandon, combines modern design with comfortable living. The main floor features 9-foot ceilings and a spacious entry, leading to an open-concept living room. The great room is highlighted by an electric fireplace, creating a cozy atmosphere. The kitchen is equipped with quartz countertops, a large island, a corner pantry, and high-end cabinets. A convenient two-piece bathroom and inside entry from the garage add to the functionality of this level. Upstairs, you'll find three bedrooms, including a primary suite with a generous walk-in closet and a 4-piece ensuite bathroom. An additional 4-piece bathroom and a laundry area are also located on this floor. Located on a peaceful crescent in the north hill area, the property offers stunning west-facing views from the backyard, perfect for enjoying beautiful sunsets. The home includes a double-car attached garage, a concrete driveway, landscaping, and a deck off the dining room, enhancing the outdoor living experience. The unfinished basement presents a blank canvas for you to customize and develop according to your specific needs, making this house a truly personalized home.Property Summary
Property Type
Single Family Attached
Square Feet
1539
Property Style
Two Storey
Community
Brandon
Neighbourhood
Hamilton
Building
Bedrooms
3
Full Baths
2
Half Baths
1
Land
Frontage
40 ft.
Lot Depth
125 ft.